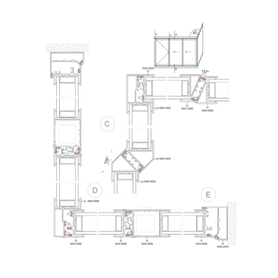
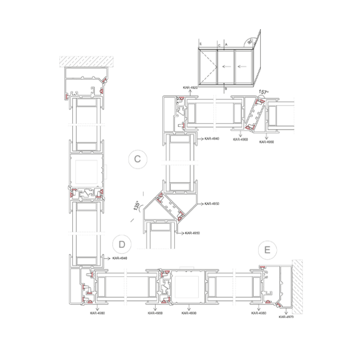
Cam balkon, camların alüminyum raylar içerisinde hareket ederek, balkonun uygun köşelerine, tüm camların katlanarak açılmasını sağlayan sistemdir.
Uygulamada kullanılan çift cam özelliği ile 6 kat daha fazla ısı yalıtımı sağlar.
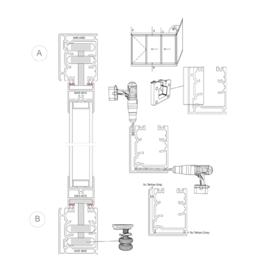
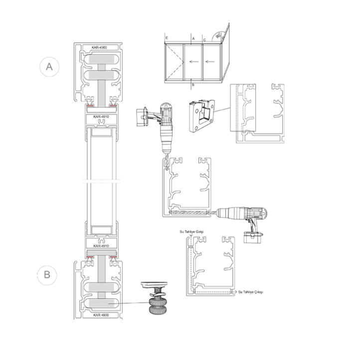
Kanatların hem altında hem üstünde yer alan sessiz hareket için tasarlanmış güçlü 4 adet teker takımı ve paslanmaya karşı güçlendirilmiş metal aksamlar 10 yıl garanti ile uzun ömürlü kullanım sağlayan cam balkon sistemidir.
Duvar kenarlarına dikey profillerle tam entegre sağlayan şık tasarım ile kenarlardaki ekstra fitillerle arttırılmış yalıtım, paneller arası plastik contalar ile üst düzey sızdırmazlık sağlar.
90° ve 135° ’ye uygulamaya imkânı sağlayan panel profilleri, balkonlar ve eşikli mekân kapatmalara uygun tasarlanmıştır.
Estetik ve gizli kilit açma/kapama mekanizması istenilen yüksekliğe monte edilerek estetik görüntü ile güvenliği sağlamanıza yardımcı olur.
Geniş renk seçenekleri ile her ortama hitap eden ürün yelpazesine sahiptir.